Progress Design

From schematics to detailed plans

Once schematic design is reviewed we combine your favorite elements from each design. Then, in the progress phase, our team drafts one set of detailed plans and elevations in CAD to be approved.

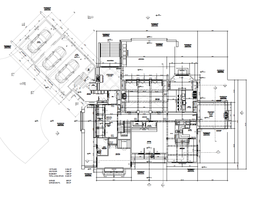
Construction Documentation

Concepts to construction-ready plans

Once a progress design is approved, we finalize detailed plans and elevations. These drawings are used for pricing, permitting, and construction, and can also support special permit or variance applications if needed. At this stage, we refine the design with finish details tailored to your style. This phase typically takes 2–4 weeks depending on the scope of design and scale of project.